中古マンション
サンクタス鴨川別邸
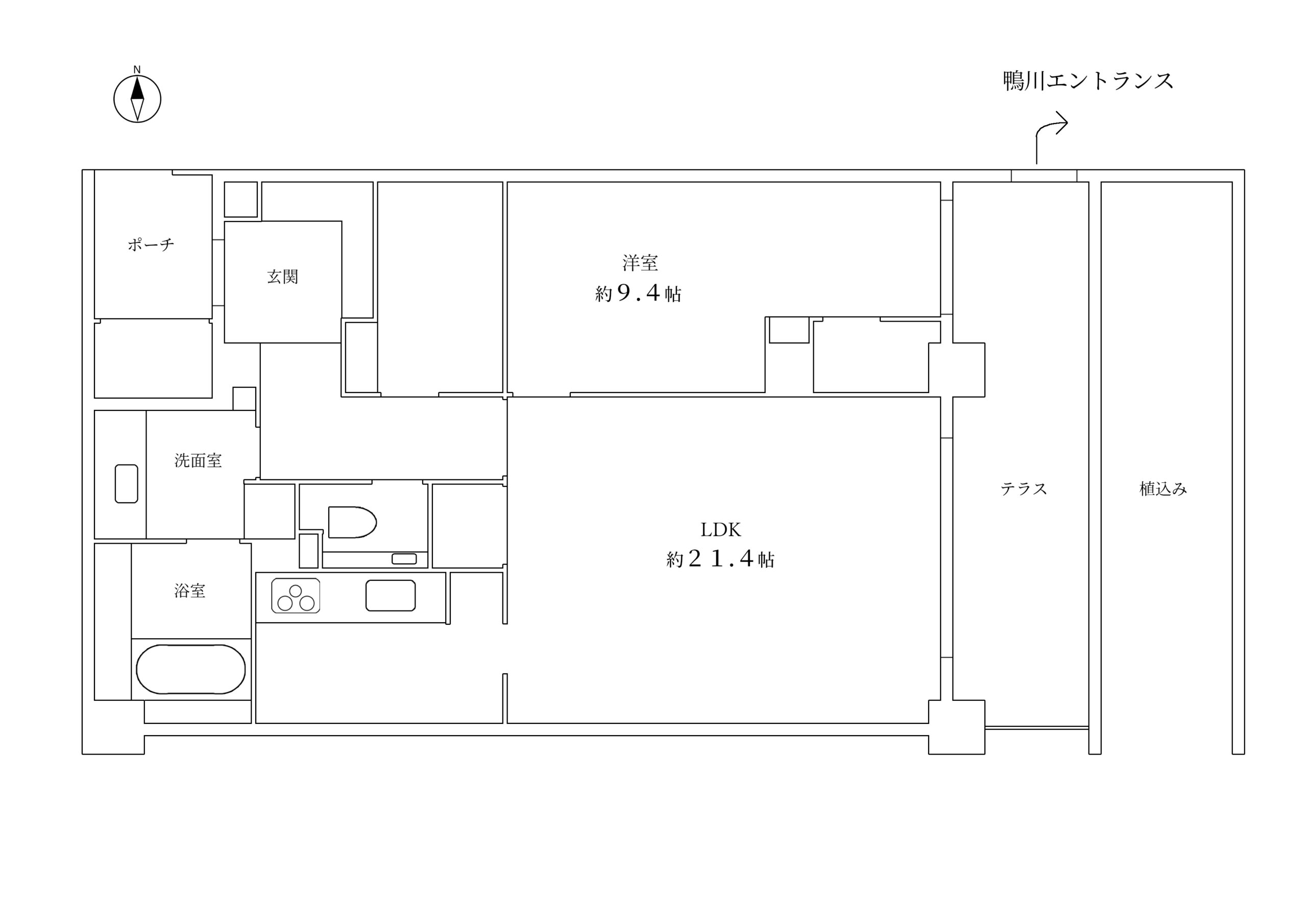
1LDK+F
82.17㎡
12,000万円
- 間取り
- 1LDK+F
- 専有面積
- 82.17㎡(壁芯)
- バルコニー面積
- 15㎡
- 建築年月
- 平成16年2月
- 総戸数
- 34戸
- 建築構造/所在階
- RC造階地上7階建1階部分階部
- 管理費
- 16,800円/月
- 修繕積立金
- 12,900円/月
- 事業主
- オリックス・リアルエステート
- 施工会社
- 竹中工務店
- 管理会社
- 大京アステージ
- 管理方法
- 全部委託/日勤
- 取引形態
- 媒介
0120-699-488